ВАКУУМНАЯ ИНСТАЛЛЯЦИЯ

Унитаз вакуумный из стеклопластика подвесной

Вакуумный подвесной унитаз из стеклопластика подключается к уже
имеющейся вакуумной системе.

Вес нетто: 12,8 кг

Вес брутто: 14,4 кг

Размер: 550*355*380 мм

183000 

ТЕХ.ПАСПОРТ

Унитаз выполнен из нержавеющей стали AISI 304 и AISI 316. Предназначен для использования в санитарнобытовых помещениях. ТУ 25.99.11-003-92472221-2017.

Унитаз выполнен из нержавеющей стали AISI 304. Предназначен для использования в санитарно-бытовых помещениях. ТУ 25.99.11-003-92472221-2017. В комплект входит: 1. Подвесной унитаз; 2. Сиденье для унитаза; 3. Манжет.

Вес нетто

12,8 кг

Вес брутто

14,4 кг

Размер

550*355*380 мм

Чертеж вакуумного
унитаза

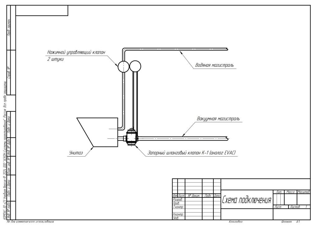
Схема
подключения

Гарантийные обязательства

1.1. Изготовитель гарантирует соответствие изделия требованиям безопасности, при условиях соблюдения потребителем правил использования, транспортировки, хранения, монтажа и эксплуатации.
1.2. Гарантия распространяется на все дефекты, возникшие по вине завода-изготовителя.
1.3. Гарантия не распространяется на дефекты, возникшие в случаях:
- нарушения паспортных режимов хранения, монтажа, испытания, эксплуатации и обслуживания изделия;
- ненадлежащей транспортировки и погрузо-разгрузочных работ;
- наличия следов воздействия веществ, агрессивных к материалам изделия;
- наличия повреждений, вызванных пожаром, стихией, форс-мажорными обстоятельствами;
- повреждений, вызванных неправильными действиями потребителя;
- наличия следов постороннего вмешательства в конструкцию изделия.
1.4. Производитель оставляет за собой право внесения изменений в конструкцию, улучшающие качество изделия при сохранении основных эксплуатационных характеристик.

Условия гарантии

2.1. Гарантийный срок на продукцию составляет 1 (один) год с даты покупки, если не указан другой срок.
2.2. Претензии к качеству товара могут быть предъявлены в течение гарантийного срока.
2.3. Неисправные изделия в течение гарантийного срока ремонтируются или обмениваются на новые бесплатно. Решение о замене или ремонте изделия принимает сервисный центр. Замененное изделие или его части, полученные в результате ремонта, переходят в собственность сервисного центра.
2.4. Затраты, связанные с демонтажом, монтажом и транспортировкой неисправного изделия в период гарантийного срока Покупателю не возмещаются.
2.5. В случае необоснованности претензии, затраты на диагностику и экспертизу изделия оплачиваются Покупателем.
2.6. Изделия принимаются в гарантийный ремонт (а также при возврате) полностью укомплектованными.

Эксплуатация

3.1. Монтаж и установку изделий из нержавеющей стали следует производить по «Проекту производства монтажных работ» разработанному монтирующей организацией, либо согласно инструкции по монтажу.
3.2. Монтаж или установка изделий производятся на ровной поверхности. При несоблюдении этого условия, Продавец не несет ответственность за утрату изделием технических характеристик.

Хранение и транспортировка

4.1. Изделия могут транспортироваться любым видом транспорта.
4.2. Размещение и крепление изделий на транспортном средстве должно производиться в соответствии с правилами перевозки грузов для конкретного вида транспорта.
4.3. Погрузка готовых изделий на транспортные средства и строповка их должны выполняться приёмами, исключающими образование остаточных деформаций и вмятин. Строповка цепями, непосредственно касающимися поверхности элементов запрещается.
4.4. Допускается отправка документации почтой.
4.5. Изделия не должны соприкасаться с грунтом.
4.6. На изделиях из нержавеющей стали не должна застаиваться вода.

Хранение и транспортировка

5.1. Утилизация изделия (переплавка, захоронение, перепродажа) производится в порядке, установленном Законом РФ от 04 мая 1999 г. № 96 ФЗ «Об охране атмосферного воздуха» (в редакции от 01.01.2015 г.), от 24 июня 1998 г. № 89-ФЗ (в редакции от 01.01.2015 г.) «Об отходах производства и потребления», от 10 января 2002 г. № 7-ФЗ «Об охране окружающей среды» (в редакции от 01.01.2015г.), а также другими российскими и региональными нормами, актами, правилами, распоряжениями и пр., принятыми во исполнение указанных законов.
5.2. Содержание благородных металлов: нет.

Памятка владения

Изделия из нержавеющей стали марки 304 AISI необходимо мыть теплой водой или нейтральными моющими средствами (мыло), или использовать специальные средства по уходу за нержавеющей сталью.

Для удаления пятен с поверхности нержавеющей стали можно использовать мыльный раствор или органические растворители, такие как спирт, метиловый спирт или денатурированный этиловый спирт.

После удаления пятен поверхность нужно промыть и вытереть насухо. Отложения кальция на поверхности изделия можно удалять при помощи раствора одной части уксуса к трем частям воды. Изделие необходимо замочить в растворе, после чего налет можно будет оттереть. После чистки изделие необходимо помыть теплой водой и вытереть насухо.

Не используйте для чистки абразивные материалы и твердые мелкозернистые вещества и чистящие средства, содержащие песок, соду, кислоты и хлорсодержащие вещества.

Удалить неглубокие царапины с поверхности может помочь полировка нейлоном. Для полировки нельзя использовать стальную вату, так как частицы металла могут повредить поверхность и спровоцировать коррозию.

Изделия с разным типом полировки (зеркальная или матовая) требуют различного подхода к чистке и уходу. Полированные поверхности чистят средствами по уходу за изделиями из нержавеющей стали, тогда как для матовых поверхностей эти средства следует применять с осторожностью. Производя очистку средством по уходу за нержавеющей сталью необходимо все движения осуществлять строго по направлению линий шлифовки, не допуская круговых движений. Особенно это важно для изделий с матовой полировкой. Средства по уходу за нержавеющей сталью обладают полирующим эффектом и при локальном применении могут вызвать изменение фактуры поверхности в месте применения. Недопустима интенсивная полировка отдельных участков. Такая обработка может нанести вред общему виду изделия. Особенно это важно для матовых поверхностей.

Спасибо за внимание

Давайте
работать

Контакты

📬 vacuumsistems@yandex.ru

📞 +7 (915) 400-00-95

Наш офис

📍 МО, г.Королев, ул.Пионерская, д.11

0
    0
    Ваш заказ
    Тут пока ничего нет